HOME SWEET (CANDY) HOME
Residenziale -Terranuova Bracciolini (tra Arezzo e Firenze) -dicembre 2016Info Progetto
Terranuova Bracciolini (tra Arezzo e Firenze) -dicembre 2016
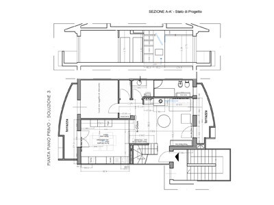
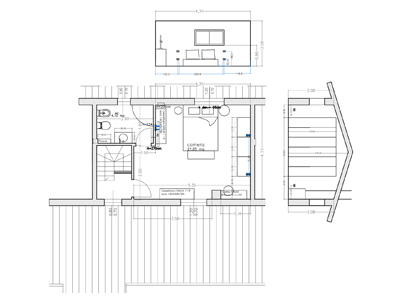
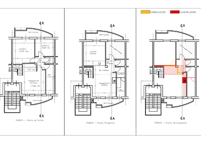
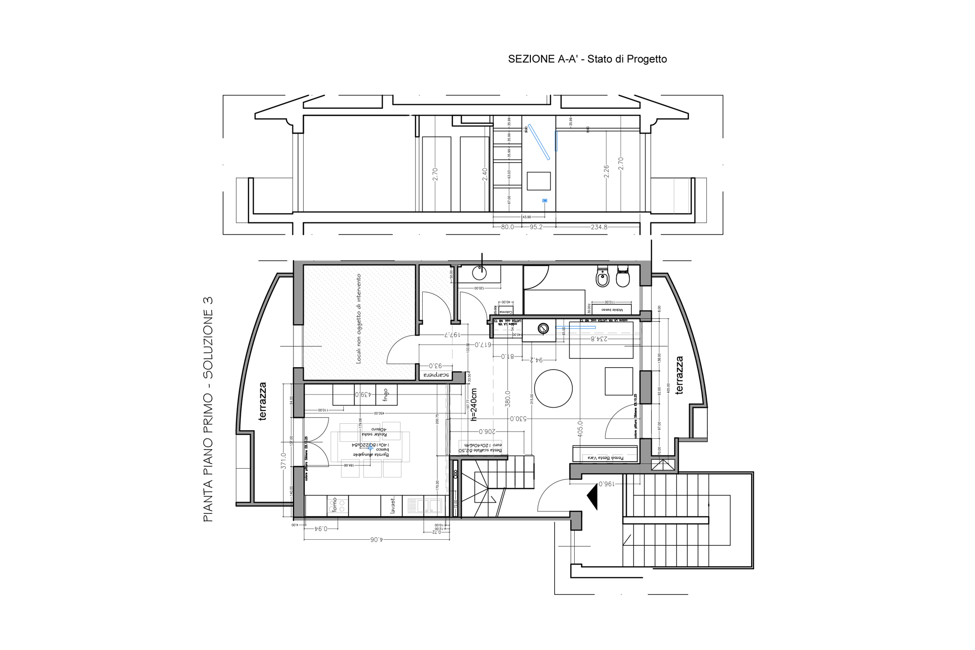
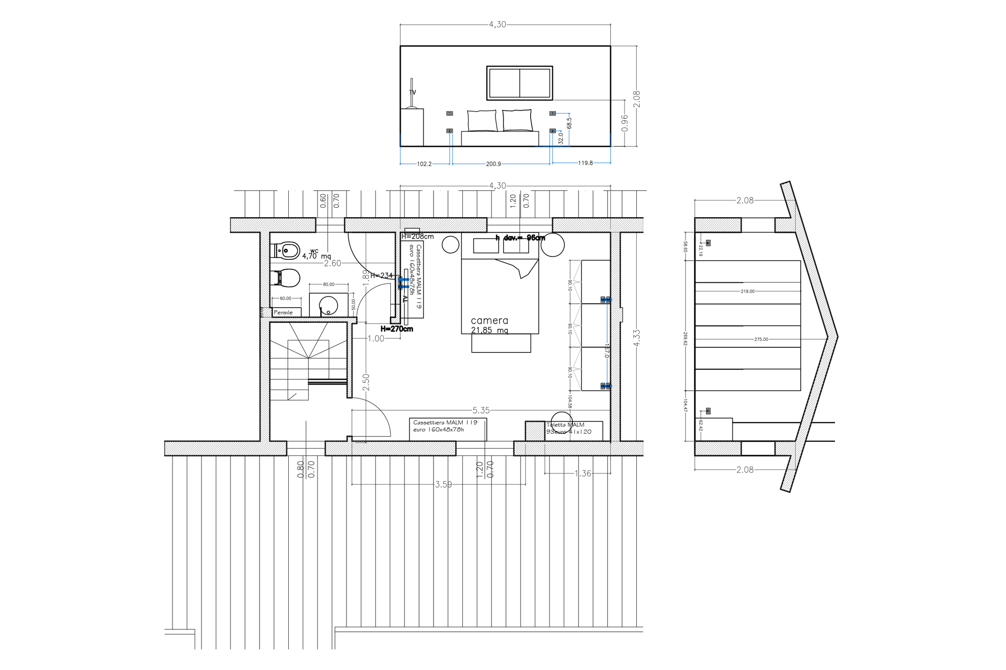
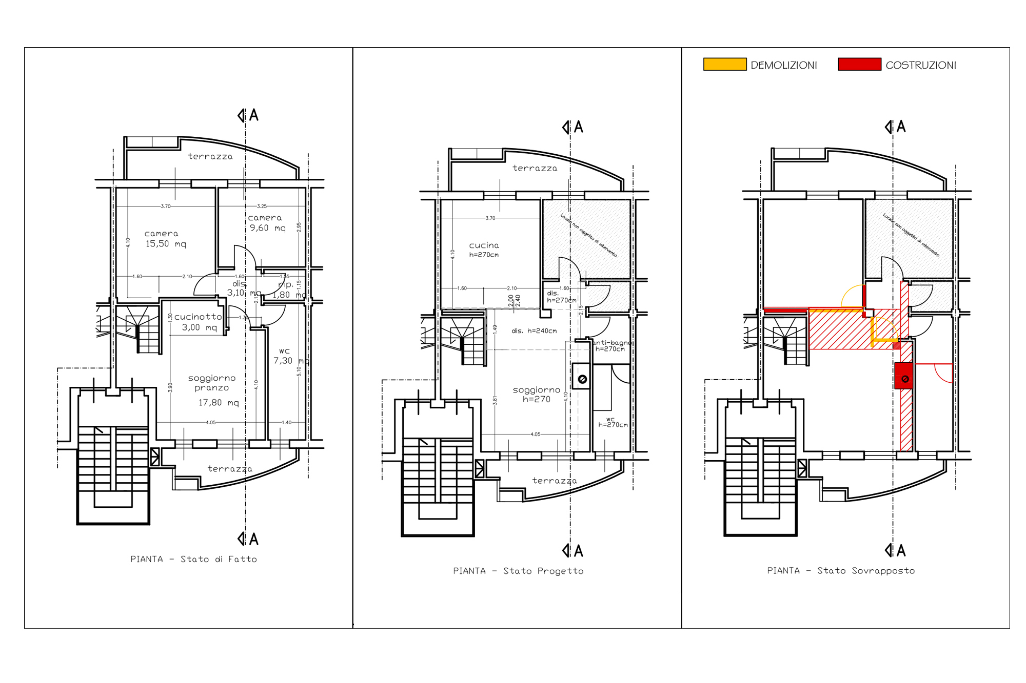
Progetto Architettonico, Pratica Edilizia, Interior Design, Direzione dei lavori e delle maestranze, Lighting Design, Home Shopping, Staging e Foto realizzati da Rachele Biancalani Studio. Questo appartamento su due livelli si presentava poco adatto alle esigenze della nostra cliente, una giovane scrittrice emergente che vive da sola e che ama ricevere gli amici. La zona giorno infatti aveva dimensioni limitatissime: in pochi mq erano condensati il cucinotto, la sala da pranzo e il soggiorno. C'erano invece tre grandi camere separate totalmente inutili per la nostra cliente. Inoltre le finiture, rustiche toscane (il cotto a pavimento, le pareti spugnate in giallo, la scala in pietra serena con corrimano in ferro battuto) non incontravano affatto i gusti della cliente giovane e amante del rosa e dello stile contemporaneo. Sebbene il budget per i lavori non fosse altissimo siamo riusciti ad ottimizzarlo investendo nelle modifiche fondamentali che potessero trasformare gli spazi: demolita la parete del cucinotto abbiamo utilizzato una delle camere per creare una grande cucina più che abitabile e lasciare lo spazio necessario per organizzare al meglio la zona living. Un gioco di velette in cartongesso delimita le zone e distribuisce tagli di luce dove necessario. Un resina (Rapidmix) in colore custom ha coperto con successo il vecchio cotto e parte della scala alla quale è stato modificato anche il parapetto sostituito da un reticolo con telaio in ferro e corda intrecciata che ci siamo divertiti a creare sul posto insieme alla cliente. La camera da letto padronale e lo studio sono entrambi caratterizzati dal colore rosa come il resto dell'appartamento. Bianco, rosa (in tutte le declinazioni) e marrone cioccolato caratterizzano tutti gli ambienti che risultano giovani e divertenti e rispecchiano a pieno la personalità di Serena!































