Bellezza Toscana
Residenziale -Campagna Toscana -settembre 2025Info Progetto
Campagna Toscana -settembre 2025
Anno del progetto: 2023
Realizzazione: 2024-2025
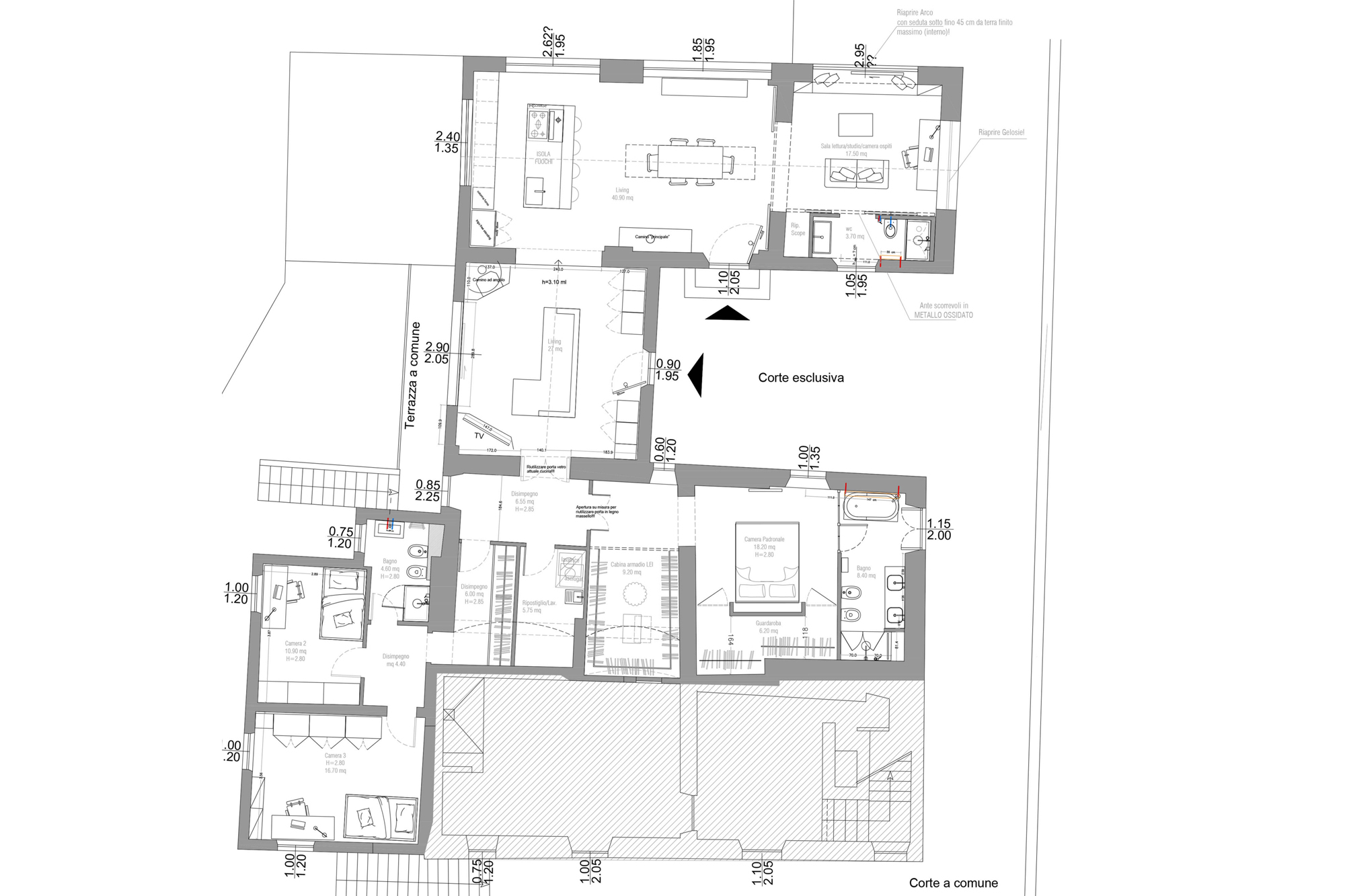
Mq=250 più giardino
Progetto Architettonico, Interior Design, Lighting Design, Home Shopping e Direzione artistica delle Maestranze: Rachele Biancalani Studio.
Foto: Rachele Biancalani
Richieste dei Clienti, una coppia di medici:
1-Unire il fienile al resto dell’abitazione
2-Svecchiare lo stile tradizionale toscano preesistente senza snaturarlo
3-Ricavare 3 bagni di cui uno con vasca, doccia doppia e getti idromassaggio
4-Camera padronale con 2 cabine armadio
5-Enorme cucina in fenix nero
6-Avere 2 camini
Stile del progetto: Stile “Tuscandy”, ovvero uno stile in cui la toscana incontra il minimalismo
Colori utilizzati: sabbia, grigio, corten, legno naturale
Materiali utilizzati a pavimento: tutta resina cementizia spatolata
Decorazioni/rivestimenti parietali: resina nei bagni e come rivestimento dell’isola cucina, rivestimento parietale nei bagni in cotto artigianale fatto a mano.
“Chicche” del progetto:
1-Viva le superifici continue! Tutti i rivestimenti sono in resina ad eccezione di piccole porzioni di parete nei bagni
2-L’enorme cerchiatura fatta ad “A” nel fienile lasciata a vista
3-Le curve e il colore del bagno padronale in cui i muri sembrano di burro
4-l’isola della cucina completamente in resina con lavabo integrato
Un progetto molto complesso a causa delle tante richieste della Committenza che ha richiesto innumerevoli revisioni dell’architettonico. Come si vede dalla foto alcune stanze non sono ancora terminate ma si capisce comunque la coerenza del progetto e la linearità della visione complessiva.
Una delle scelte fondamentali come progettista è stata quella di eliminare tutto il superfluo dal fienile 600esco che era stato controsoffittato e trasformato in appartamento in una ristrutturazione poco rispettosa degli anni’70. Altro intervento fondamentale da parte mia far riaprire tutte le gelosie che erano state murate e trasformare le piccole aperture del living in una enorme parete vetrata con vista sulla campagna circostante.
In ultimo, ma non per importanza, la decisione della progettista di far sabbiare e velare i soffitti con pianelle e travi a vista lasciando comunque visibile il colore originale del legno e delle pianelle in cotto, tecnica che utilizzo da innumerevoli anni in tutte le ristrutturazioni in cui voglio svecchiare dei solai troppo “pesanti”. Nelle foto del Prima e del Dopo si vede in piena evidenza quanto gli spazi ne abbiano giovato.
I materiali usati sono naturali come il cotto artigianale e il legno di recupero con cui sono stati realizzati gli arredi su misura.
La cucina è interamente realizzata su misura ed ha al suo centro una grandissima isola lunga 3 metri con fuochi, cappa a scomparsa e lavello.
PRODOTTI E FORNITURE:
-Applique e lampade bagno: Toscot
-Sanitari: SDR
-Rubinetterie: Oioli e Teorema
-Scaldasalviette e termoarredi : Irsap
-Resine: Arteviva
-Pitture parietali e battiscopa: Kerakoll
-Cotto fatto a mano bagni: Cotto Etrusco




















